Instructions étape par étape pour installer rapidement et facilement une porte affleurante dans une cloison en placoplâtre.
Une fois les composants achetés, l’installation d’une porte affleurante dans une cloison en placoplâtre est une opération assez simple. Ce type de trappe est particulièrement utile dans l’ameublement, car il permet de dissimuler des niches et des compartiments de rangement, ainsi que des compteurs et des installations électriques. La fermeture totalement invisible de la porte affleurante ne nuit pas à l’aspect homogène du mur, grâce à l’absence totale de cadres. De plus, le système d’ouverture push/pull permet d’éviter l’installation d’une poignée si l’on souhaite une mimétisme parfait. Mais comment installer une porte affleurante dans une cloison en placoplâtre? Voici les instructions.
Caractéristiques de la trappe affleurante nécessaires à l’installation.
Une trappe affleurante est dotée d’un cadre en aluminium spécial qui permet de l’installer de manière à ce qu’elle soit parfaitement invisible une fois fermée. Avant de procéder à l’installation, assurez-vous que le cadre est également adapté au montage dans le placoplâtre, comme c’est le cas pour les portes Portesinvisibles.fr. Dans ce cas, par exemple, le panneau est constitué d’une porte en MDF de 19 mm d’épaisseur et préinstallé sur un cadre avec un système de fermeture à pression. Il est donc également idéal pour les trappes d’inspection qui permettent d’accéder à l’intérieur des structures en placoplâtre. La parfaite linéarité de la porte par rapport au mur est garantie par des charnières réglables.
Comment installer une trappe affleurante: procédure dans le placoplâtre.
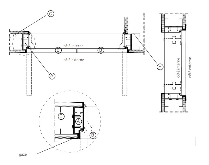
Pour l’installation de la trappe affleurante dans le placoplâtre, veuillez vous référer à la figure suivante:

- Tout d’abord, nous insérons la trappe complète avec le panneau B monté sur le cadre A à l’intérieur du compartiment, en respectant scrupuleusement le plan et le plomb.
- À l’aide de vis à tôle appropriées, nous fixons le cadre à la structure en placoplâtre C.
- Dans le cas d’une cloison en placoplâtre déjà terminée, nous procédons en vissant le cadre de l’intérieur, en travaillant avec les portes trappes ouvertes comme sur la figure 1.
- À ce stade, il ne reste plus qu’à poser une bande de renfort et enduire les parties de jonction entre le placoplâtre et le cadre en aluminium.




